Bratislavská mestská štvrť Vrakuňa bola donedávna mimo pozornosti veľkých developerov. Stavali sa tam len menšie projekty, ktoré zahusťovali panelákovú výstavbu ešte z čias socializmu.
Lenže to sa má zmeniť. Projekt Nový Majerhof pokročil v procese posudzovania vplyvov na životné prostredie (EIA). Na začiatku apríla sa skončilo zisťovacie konanie, kde väčšinou prichádzajú pripomenky dotknutých úradov k projektu.
Celkovo prišlo 15 pripomienok. Napríklad magistrát hlavného mesta požadoval, aby sa dodržalo pásmo hygienickej ochrany pri čističke odpadových vôd vo Vrakuni. Developer – spoločnosť Malý Dunaj Development sľubuje, že zrážkové vody budú zadržané na pozemku projektu a nebudú vyvedené do verejnej kanalizácie. Na zachytenie zrážkovej vody budú zväčšené vsakovacie systémy.
So smradom z čističky by nemal byť problém
Túto podmienku spomíname preto, lebo už v minulosti bola veľkým problémom celého projektu, ktorý sa práve kvôli blízkosti k čističke odpadových vôd (ČOV) odkladal. Magistrát Bratislavy považoval novú výstavbu bytov v blízkosti ČOV a navyše na hranici jej pásma hygienickej ochrany (PHO), za nevhodné riešenie. Aj preto developer v októbri minulého roka stiahol svoj zámeru z procesu EIA, kde bol už od roku 2021.
Zdá sa, že developer už čiastočne problémy vyriešil. „Z pohľadu života a zdravia je na projekt vydané súhlasné stanovisko Regionálneho úradu verejného zdravia, ktorý nemá žiadne pripomienky,“ hovorí pre Finsider Martin Adásek, konateľ spoločnosti Malý Dunaj Development.
Nad rámec zákona developer vykonal aj iné environmentálne a emisné štúdie a žiadna nepotvrdila zdravotné riziko. M. Adásek vraví, že zámeru pomôže aj to, že už prebieha projekt odsmradnenia ČOV Vrakuňa, ktorý by sa mal ukončiť na konci tohto roka. Práve zápach z čističky bola ďalšia výhrada proti výstavbe bytov v jej blízkosti.

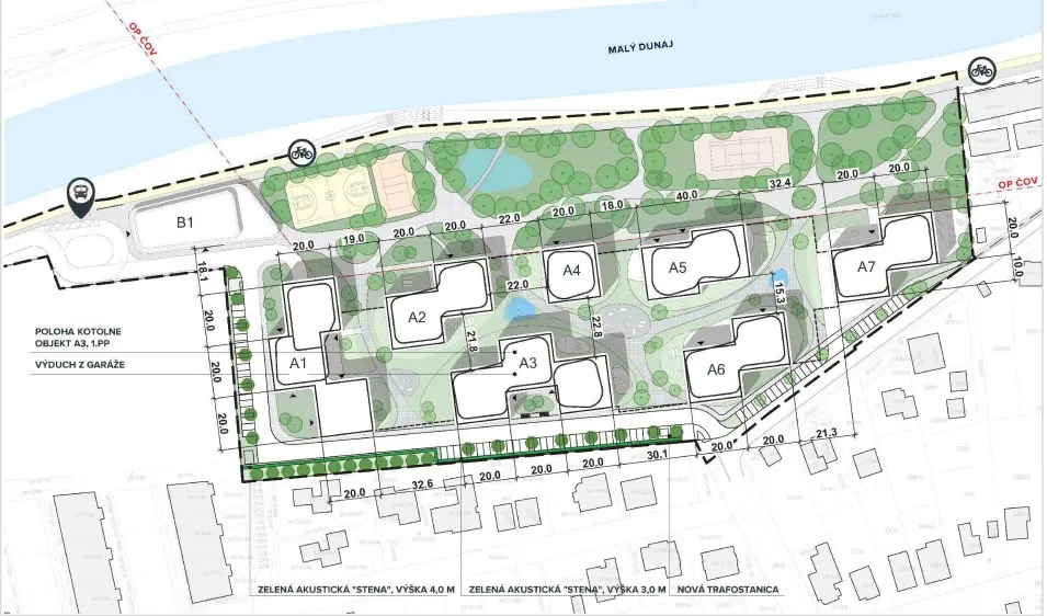
Nový Majerhof prinesie stovky bytov
Za projektom Nový Majerhof je bývalý partner finančnej skupiny Penta Martin Kušík, ktorý pochádza práve z Vrakune. Na novú obytnú štvrť prerobí brownfield, kde pôvodne bola betonáreň. Územie sa nachádza medzi Amarelkovou a Ihličnatou ulicou a zo severu hraničí s nábrežím Malého Dunaja. Aj blízkosť rieky bola v povoľovacom konaní problematická, lebo sa tam nachádza ochranné pásmo.
Developer má v pláne v lokalite postaviť sedem samostatných bytových domov s takmer 300 bytmi. Projekt sa zmenšil, lebo pôvodne bolo v pláne až 11 bytových domov. Pribudnúť tam má aj občianska vybavenosť ako škôlka, reštaurácia, športové centrum v samostatnej budove a kaviareň. Dokonca by v štvrti malo vyrásť aj kino, knižnica či zdravotnícke zariadenie.
Domy nebudú výškové, plánujú sa len so štyrmi až šiestimi podlažiami. Najmenšie byty majú byť 1,5–izbové a najväčšie štvorizbové. Parkovať by tam malo až 450 áut.
Náklady na výstavbu developer odhaduje na 50 miliónov eur. Začiatok výstavby je naplánovaný na rok 2025 a ukončenie o tri roky neskôr. Či sa termíny stihnú, keďže už pri posudzovaní sú zdržania, je otázne.
M. Adásek hovorí, že v projekte neplánujú nič meniť, pretože je v súlade s územným plánom Bratislavy a byty ako prevládajúca funkcia sú na tomto mieste povolené.
Zelené prvky a dôraz na voľný čas
Bytové domy neďaleko Malého Dunaja by mali mať fotovoltické panely na strechách, aby sa znížili nároky na elektrickú energiu. Z vizualizácii je zrejmé, že domy majú mať aj drevené tieniace lamely na fasáde, čo im dodáva prírodnejší vzhľad.
Vo vnútroblokoch je naplánovaná zeleň a detské ihriská. Súčasťou projektu je aj budova, ktorá by mala slúžiť pre rekreačno-športové účely. V severnej časti je plánovaný parčík s vodnou plochou. Bytovky by mali byť odolnejšie aj voči zmene klímy. V projekte sa spomína napríklad delená kanalizačná sústava, vsakovacie systémy, väčšie plochy zelene, intenzívna strešná zeleň a dažďové záhrady.
V minulosti M. Kušík finančne podporil revitalizáciu nábrežia Malého Dunaja a chcel pri ňom vytvoriť promenádu. Tento projekt je len pokračovaním jeho snáh zlepšiť bývanie vo Vrakuni.
Ceny bytov ešte nie sú zverejnené. Developer v zámere píše, že bývanie bude atraktívne a zároveň dostupné pre širšie vrstvy obyvateľstva. Na realitných portáloch sa nové väčšie byty vo Vrakuni predávajú od 200-tisíc vyššie. Napríklad 3-izbový byt s rozlohou 80 m2 stojí 217-tisíc eur. Dvojizbový s rozlohou 46 m2 sa predáva za 147-tisíc eur.
Nový Majerhof v čase
2018 Prebehla architektonická súťaž na projekt.
2021 Projekt vstúpil do procesu posudzovania vplyvov na životné prostredie (EIA).
2022 Okresný úrad Bratislava prerušil konanie kvôli problémom s čističkou odpadových vôd.
október 2023 Žiadosť developera o späťvzatie a ukončenie EIA.
november 2023 Podanie nového zámeru na EIA.
apríl 2024 Ukončenie pripomienkovania projektu.
2025 Plánovaný začiatok výstavby.
2028 Plánované ukončenie stavby.
Prečítajte si ďalšie články na túto tému:

